Alüminium profillər Aımgsı 0.5 - F22 ərintisindən hazırlanır və 12020 standartlarına cavab verir.
Fiziki xüsusiyyətlər:
| İntensivlik | 2,71 kq/sm3 |
| Elastiklik Modulu | 70 kN / mm2 |
| Müqavimət | 20° 33 n Q.m |
| Ərimə nöqtəsi | 600 - 655° |
| Genişlənmə əmsalı | 20 - 100 ° C m ° C |
Mexanik xüsusiyyətlər:
| Elastiklik həddi | 190 MPa |
| Dartılma gücü | 220 MPa |
| Sərtlik | 67 Brinell |
| Uzatma | % 10 |
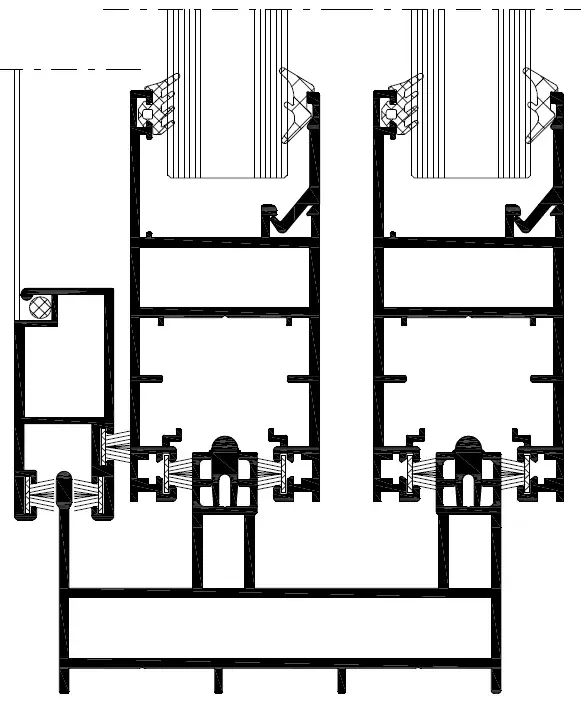
Sistem haqqında məlumat:
Binicilik dülgərlik növləri: 2 və 4 bıçaqlı Atçılıq dülgərliyi istehsal edilə bilər.
Fitil: bütün fitillər EPDM-dən hazırlanır.
Faydalı şüşə qalınlığı: istilik şüşəsinin istifadəsinə imkan verən maksimum 22 mm.
Dərinlik: noyabr ayının standart dərinliyi 81,6 mm, qanad dərinliyi isə 35 mm - dir.
Divar qalınlığı: 1.8 mm.
Su drenajı: bütün profillərdə su drenaj sistemi var.
Dəmir yolu: alüminium və paslanmayan poladdan hazırlanmışdır, dəyişkəndir.
Aksesuar: açarla - Açarsız mortise və ya ispan qolu, PVC dülgərlik aksesuarları PVC dülgərlik adapteri ilə istifadə edilə bilər.
Bağlantılar: gövdə və qanadın açısal birləşmələri noyabr press künc Paz birləşmələri.